
Anglet, la petite Californie basque, séduit par ses 11 plages de sable fin et ses forêts de pins préservées.Entre Bayonne et Biarritz, elle offre un cadre de vie unique, mêlant nature, océan et dynamisme urbain. Un lieu privilégié où chaque jour rime avec bien-être, loisirs et art de vivre basque.
Chez GRAVIER IMMOBILIER,
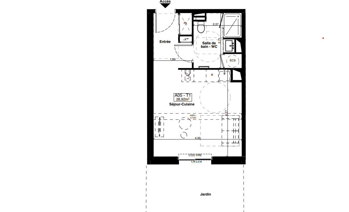
Venez découvrir ce charmant studio unique de 28 m², situé en rez-de-chaussée d’une résidence récente et sécurisée " Les Pins Blancs"
L’appartement se compose :
- d’une pièce de vie lumineuse,
- d’un espace cuisine à aménager selon vos envies,
- d’une salle de bain moderne avec WC.
vous profiterez d’un jardin privatif exposé plein Sud d’environ 21 m², idéal pour vos moments de détente en extérieur.
Une place de parking privative viendra sublimer le tout et compléter ce cadre de vie d’exception.
La résidence neuve vous assure confort et tranquillité, tout en étant à proximité des commodités et des transports.
Livraison dernier trimestre 2027
Frais de notaire réduit 2.5%
Dans cette résidence neuve à Anglet, découvrez plusieurs appartements allant du studio au T4, proposés entre 247 000 € et 895 000 €, avec jardins, terrasses et places de parking
Pour plus de renseignements, veuillez contacter Allan GRAVIER au 06.59.55.83.30

Les informations recueillies sur ce formulaire sont enregistrées dans un fichier informatisé par La Boite Immo agissant comme Sous-traitant du traitement pour la gestion de la clientèle/prospects de l'Agence / du Réseau qui reste Responsable du Traitement de vos Données personnelles.
La base légale du traitement repose sur l’intérêt légitime de l'Agence / du Réseau.
Elles sont conservées jusqu'à demande de suppression et sont destinées à l'Agence / au Réseau.
Conformément à la loi « informatique et libertés », vous pouvez exercer votre droit d'accès aux données vous concernant et les faire rectifier en contactant l'Agence / le Réseau.
Si vous estimez, après avoir contacté l'Agence / le Réseau, que vos droits « Informatique et Libertés » ne sont pas respectés, vous pouvez adresser une réclamation à la CNIL.
Nous vous informons de l’existence de la liste d'opposition au démarchage téléphonique « Bloctel », sur laquelle vous pouvez vous inscrire ici : https://www.bloctel.gouv.fr
Dans le cadre de la protection des Données personnelles, nous vous invitons à ne pas inscrire de Données sensibles dans le champ de saisie libre
Ce site est protégé par reCAPTCHA, les Politiques de Confidentialité et les Conditions d'Utilisation de Google s'appliquent.